ID CP2815979

3cam.dec-bd.Brancoveanu-mall Grand Arena-Berceni-A.Persu

ID CP2815979

176,902 € TVA inclus

Apartament cu 3 camere de vânzare
Berceni, Bucuresti
70.95 mp
2025

Direct dezvoltator.

Comision 0%.

Info si vizionari, tel: 0720002332.

Pret credit(avans minim 15-20%): 187308euro(TVA 21% - inclus), adica (1800euro+tva)/mp.

Pret cash(avans minim 50%): 176902euro(TVA 21% - inclus), adica (1700euro+tva)/mp.

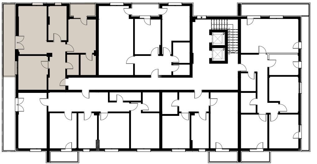
Va propunem un apartament total decomandat(dispunere S-V), compus din 3 camere si dependinte, situat la ultimul etaj(7/7) avand terasa la living, dar si balcon tip logie la unul din dormitoare.

Toate apartamentele se predau la cheie, finisate(avand posibilitatea de alegere a finisajelor dorite: gresie, faianta, parchet, obiecte sanitare, usi de interior) cu urmatoarele dotari: centrala termica in condensare, individuala, pe gaz cu automatizare a centralei termice, distribuitor/consola reglaj pentru fiecare camera, aer conditionat in fiecare camera(kit preinstalat plus aparat). Orice alte solicitari se discuta punctual.

Blocul este intr-un stadiu foarte avansat de executie(finalizare - Decembrie 2025, cu tot cu acte Februarie-Martie 2026) si va beneficia de 2 lifturi pentru un total de 52 de apartamente.

Amplasarea blocului ofera liniste si intimitate, neavand expunere stradala cu trafic intens, dar, acces imediat la Bvd. Brancoveanu, str. A. Persu, str. Tr. Magurele, str. Luica, Kaufland, Mall Grand Arena, Selgros, Hornbach, institutii de invatamant din toate categoriile, spitale, statii STB pentru acces in cateva minute(5-7 minute) la statiile de metrou Brancoveanu si Ap. Patriei.

Loc parcare exterior 10000euro + TVA(21%), loc parcare interior 14000euro + TVA(21%), se achizitioneaza separat si nu sunt incluse in pretul apartamentului.

Citește mai mult

  • Tip apartament
    Apartament
  • Compartimentare
    Decomandat
  • Număr camere
    3
  • Dormitoare
    2
  • Număr bucătării
    1
  • Număr băi
    2
  • Etaj
    7
  • Suprafață utilă
    70.95 mp
  • Suprafață construită
    103 mp
  • Suprafață totală
    86 mp
  • Suprafață terasă
    11.2 mp
  • Disponibilitate
    Imediat
  • Orientare
    Nord-Vest
  • Confort
    1
  • Stare interior
    Finisat modern
  • Anul finisării
    2025
  • Număr balcoane
    1
  • Număr terase
    1
  • Număr locuri parcare
    1
  • Imobil
    Bloc de apart.
  • Stadiu construcție
    Finalizată
  • An construcție
    2025
  • Construcție nouă
    Da
  • De la dezvoltator
    Da
  • Tip construcție
    Beton
  • Număr etaje clădire
    7
  • Număr etaje retrase
    3
  • Număr subsoluri
    1

Facilități

Aer condiționat
Apă
Apometre
Bucătărie deschisă
Bucătărie închisă
Cabină de duș
Cadă
Calorifere
Canalizare
CATV
Centrală proprie
Contor electric
Contor gaz
Curent
Curte comună
Faianță
Ferestre PVC
Gaz
Geamuri cu izolație fonică
Geamuri cu protecție UV
Geamuri termopan
Geamuri tripan
Gresie
Iluminat stradal
Încălzire prin pardoseală
Interfon
Internet
Izolație exterioară
Lift
Mijloace de transport în comun
Nemobilat
Parcare acoperită
Parcare deschisă
Parchet laminat
Străzi asfaltate
Telefon
Ușă intrare metal
Uși interior cu panel
Uși interior lemn
Uși interior MDF
Uși interior PVC
Uși interior sticlă
Vedere panoramică
Vedere spre oraș
Vopsea lavabilă
WC Serviciu
Florin Ghenceanu
Broker Imobiliar

0720002332


Solicită chiar acum o vizionare
Telefon
Sună acum Solicită vizionare
Necesare:

Site-ul nu poate funcționa corect fără aceste cookie-uri. Vezi cookie-urile

Statistică:

Strângem statistici anonime despre voi, vizitatorii unici, pentru a vă îmbunătăți experiența dumneavoastră. Vezi cookie-urile

Marketing:

Pentru a ne promova mai eficient serviciile noastre, folosim cookies pentru a vă identifica și a vă oferi proprietăți și servicii personalizate. Vezi cookie-urile

Acest site folosește cookies, află detalii. Alege ce tipuri de cookies dorești să permitem: