ID CP2814503

3cam.studio/central/langa STB 440,439 - cu capat metrou Pta Sudului

ID CP2814503

99,099 € (negociabil) TVA inclus

Apartament cu 3 camere de vânzare
Central, Popesti-Leordeni
63 mp
2024

Comision 0%, achizitia se face direct de la dezvoltator, fara costuri ascunse.

Poze cu caracter informativ, din portofoliul dezvoltatorului!

Schita corespunde apartamentului promovat.

• Pret parcari: EXTERIOARE - 5.000E TVA 19% INCLUS

• Acces securizat in ansamblu – cu bariera

Proiect finalizat ce este format din 3 blocuri tip boutique, cu regim mic de inaltime (P+3E), oferind apartamente tip studio, cu gradina, apartamente de 2 si 3 camere, atat cu bucatarie open space cat si complet decomandate, pe un teren de 12.000 mp, cu deschidere la Soseaua Leordeni, ce permite accesul facil catre oras, fiind foarte aproape de centrul orasului.

Blocurile unde regasim apartamentele de 3 camere, dispun si de lift.

Statia de STB 440, 439 + noua linie de autobuz electric in apropierea ansamblului, gradinita, scoala si liceu in imediata apropiere.

Buget de finisaje generos, centrala proprie de apartament si incalzire in pardoseala, tamplarie PVC 5 camere - Salamander - culoare gri antracit exterior si alb la interior - sticla low-E, 4 anotimpuri, fatade ventilate, placate cu Alucobond, cu izolatia exterioara polistiren 10 cm + vata minerala 10 cm, balcoane cu balustrade din sticla fumurie laminata si securizata, acces securizat in ansamblu.

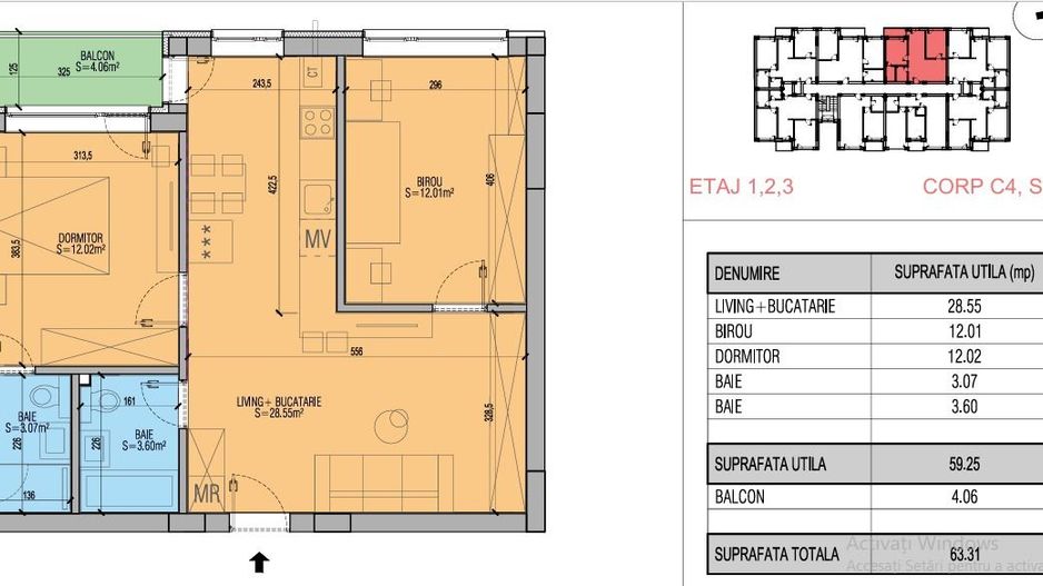
Apartamentul prezentat este un apartament complet decomandat, compus din 3 camere(avand livingul deschis cu bucataria) si dependinte(2 bai, hol,balcon).

Se poate cumpara atat cu surse proprii cat si cu credit bancar si va oferim tot suportul necesar procesului de creditare.

• NU SE INCHIDE NICIUN BALCON: VA EXISTA O CLAUZA CARE VA IMPUNE PLATA UNOR DESPAGUBIRI PENTRU CEI CARE VOR MODIFICA FATADA, IN VALOARE DE 20.000E/Doar sticla

Citește mai mult

  • Tip apartament
    Apartament
  • Compartimentare
    Semidecomandat
  • Număr camere
    3
  • Dormitoare
    1
  • Număr bucătării
    1
  • Număr băi
    2
  • Etaj
    1, 2, 3
  • Suprafață utilă
    63 mp
  • Suprafață construită
    79 mp
  • Disponibilitate
    Imediat
  • Orientare
    Sud-Est
  • Confort
    1
  • Stare interior
    Finisat modern
  • Anul finisării
    2025
  • Număr balcoane
    1
  • Număr locuri parcare
    1
  • Imobil
    Bloc de apart.
  • Stadiu construcție
    Finalizată
  • An construcție
    2024
  • Construcție nouă
    Da
  • De la dezvoltator
    Da
  • Tip construcție
    Beton
  • Număr etaje clădire
    3

Facilități

Acces pentru persoane cu dizabilități
Apă
Apometre
Bucătărie închisă
Cabină de duș
Cadă
Canalizare
CATV
Centrală proprie
Contor electric
Contor gaz
Curent
Curte comună
Faianță
Ferestre PVC
Gaz
Geamuri cu izolație fonică
Geamuri cu protecție UV
Geamuri termopan
Gresie
Iluminat stradal
Încălzire prin pardoseală
Interfon
Internet
Izolație exterioară
Loc de joacă copii
Mijloace de transport în comun
Nemobilat
Parcare deschisă
Parchet laminat
Străzi asfaltate
Telefon
Ușă intrare metal
Uși interior lemn
Uși interior MDF
Uși interior PVC
Uși interior sticlă
Vedere panoramică
Vedere spre oraș
Vopsea lavabilă
Florin Ghenceanu
Broker Imobiliar

0720002332


Solicită chiar acum o vizionare
Telefon
Sună acum Solicită vizionare
Necesare:

Site-ul nu poate funcționa corect fără aceste cookie-uri. Vezi cookie-urile

Statistică:

Strângem statistici anonime despre voi, vizitatorii unici, pentru a vă îmbunătăți experiența dumneavoastră. Vezi cookie-urile

Marketing:

Pentru a ne promova mai eficient serviciile noastre, folosim cookies pentru a vă identifica și a vă oferi proprietăți și servicii personalizate. Vezi cookie-urile

Acest site folosește cookies, află detalii. Alege ce tipuri de cookies dorești să permitem: