ID CP2781044

gars.dec.-mob-util complet+parcare/centru Popesti-Leordeni

ID CP2781044

63,500 €

Apartament cu 1 camere de vânzare
Central, Popesti-Leordeni
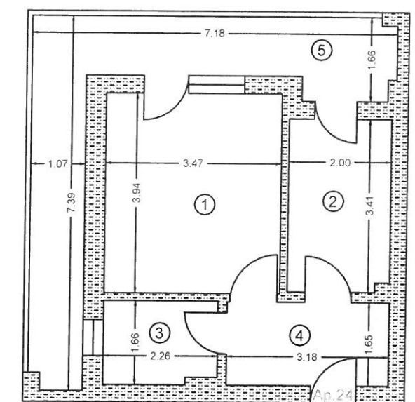
45.2 mp
2022

Proprietar,

vand prin agentie(detalii si stabilire vizionare la: 0720002332),

garsoniera total decomandata, compusa din hol de decomandare, baie cu aerisire naturala, camera de zi, bucatarie inchisa, balcon tip logie(terasa cu o suprafata foarte generoasa de aproape 15mp), avand iesiri in acesta, atat din camera de zi cat si din bucatarie, cu posibilitatea inchiderii partiale sau totale.

Garsoniera se vinde mobilata si utilata complet ca in fotografii.

In pretul afisat, este inclus si un loc de parcare cu numar cadastral propriu.

Locatia blocului este pe str. Sf. Agnes, la 7-8minute de mers pe jos pana in centrul orasului Popesti-Leordeni(unde gasiti toate facilitatile de care aveti nevoie: statie STB, Mega Image, scoala, gradinita, liceu, sedii bancare, piata, farmacii, etc.), intr-o zona aerisita de case si vile cu regim mic de inaltime, p+2+m,

Locuinta beneficiaza de toate utilitatile orasului, internet si cablu TV, iar dispunerea acesteia ofera o lumina naturala foarte buna pe tot parcursul zilei.

Comision pentru cumparator: 2% din valoarea de tranzactionare.

Citește mai mult

  • Tip apartament
    Garsonieră
  • Compartimentare
    Decomandat
  • Număr camere
    1
  • Dormitoare
    1
  • Număr bucătării
    1
  • Număr băi
    1
  • Geam la baie
    Da
  • Etaj
    3
  • Suprafață utilă
    45.2 mp
  • Suprafață construită
    54 mp
  • Suprafață totală
    45.2 mp
  • Disponibilitate
    Imediat
  • Orientare
    Est-Vest
  • Confort
    1
  • Stare interior
    Finisat modern
  • Anul finisării
    2023
  • Număr balcoane
    1
  • Număr locuri parcare
    1
  • Imobil
    Bloc de apart.
  • Stadiu construcție
    Finalizată
  • An construcție
    2022
  • Construcție nouă
    Da
  • Tip construcție
    Beton
  • Număr etaje clădire
    3

Facilități

Aer condiționat
Apă
Apometre
Aragaz
Bucătărie închisă
Bucătărie mobilată
Bucătărie utilată
Cadă
Calorifere
Canalizare
CATV
Centrală proprie
Contor electric
Contor gaz
Curent
Curte comună
Dressing
Faianță
Frigider
Gaz
Geamuri cu izolație fonică
Geamuri cu protecție UV
Geamuri termopan
Gresie
Hotă
Iluminat stradal
Interfon
Internet
Izolație exterioară
Jaluzele verticale
Loc de joacă copii
Mașină de spălat rufe
Mijloace de transport în comun
Mobilat complet
Parcare deschisă
Parchet laminat
Străzi asfaltate
Telefon
Ușă intrare metal
Uși interior cu panel
Uși interior MDF
Uși interior PVC
Uși interior sticlă
Vedere panoramică
Vopsea lavabilă
Florin Ghenceanu
Broker Imobiliar

0720002332


Solicită chiar acum o vizionare
Telefon
Sună acum Solicită vizionare
Necesare:

Site-ul nu poate funcționa corect fără aceste cookie-uri. Vezi cookie-urile

Statistică:

Strângem statistici anonime despre voi, vizitatorii unici, pentru a vă îmbunătăți experiența dumneavoastră. Vezi cookie-urile

Marketing:

Pentru a ne promova mai eficient serviciile noastre, folosim cookies pentru a vă identifica și a vă oferi proprietăți și servicii personalizate. Vezi cookie-urile

Acest site folosește cookies, află detalii. Alege ce tipuri de cookies dorești să permitem: