ID CP2797746

vila gata in duplex/5cam+2bai+150mp curte libera/comBerceni -Ilfov

ID CP2797746

130,000 €

Casă / Vilă cu 5 camere de vânzare
Berceni
132.8 mp
2024

Proprietar(persoana fizica, comision cumparator 1,5%) sau Dezvoltator(persoana juridica, comision cumparator 0%), (Tel contact: 0720002332 - stabilire vizionare, detalii suplimentare),

vand

- vila noua in duplex(pret 130000euro, nu se aplica TVA, daca se alege vila care se vinde de pe persoana fizica), cu predare la cheie(nemobilata-neutilata, finisata complet, utilitatile zonei(put propriu(la 30-35m adancime - a doua panza freatica), hidrofor, canalizare cu fosa septica betonata -vidanjabila, energie electrica, gaze);

- vila noua in duplex(pret 130000euro + TVA(21%)=157300euro, daca se alege vila care se vinde de pe persoana juridica), cu predare la cheie(nemobilata-neutilata, finisata complet, utilitatile zonei(put propriu(la 30-35m adancime - a doua panza freatica), hidrofor, canalizare cu fosa septica betonata -vidanjabila, energie electrica, gaze),

situate în Comuna Berceni, judetul Ilfov.

Recomandari:

1. - se pot face teste gratuie la Romstal, pentru verificarea calitatii apei, potabilitate, duritate, etc.

2. - pentru cine doreste sa investeasca intr-un sistem/statie de dedurizare a apei, daca este cazul, costurile se situeaza intre 4000-5000 Lei.

Suprafata totala teren pentru fiecare vila in parte, aprox. 220 mp din care amprenta la sol de 61mp.

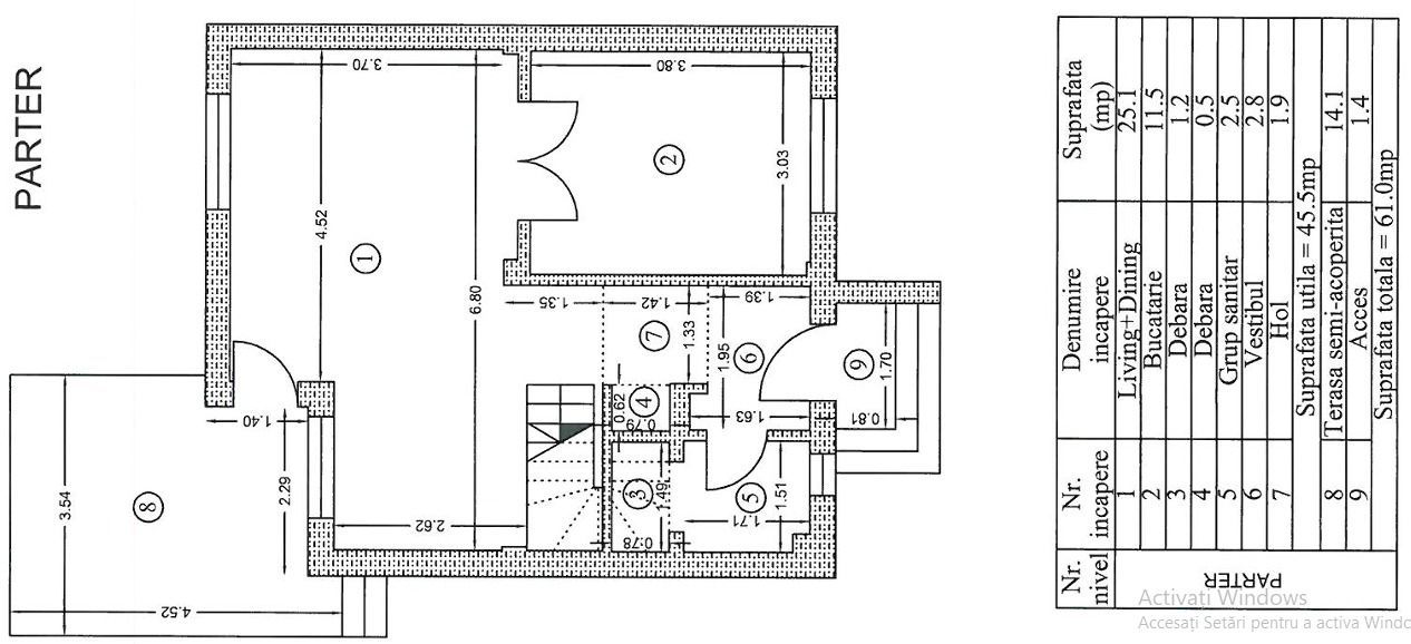
Compunere - cf. releveului/schitelor atasate:

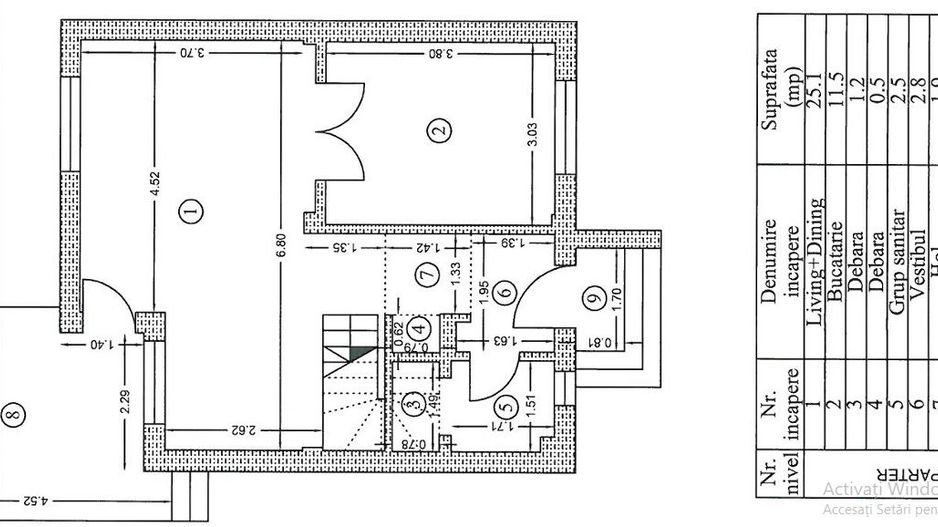
- Parter: living + dining, bucătărie, baie, vestibul, hol, 2 debarale, terasa semi-acoperita cu suprafață total de 61,5 mp

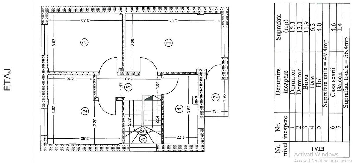
- Etaj: 3 dormitoare(unul este trecut ca birou), baie, hol, balcon - cu suprafata totala de 56,4mp

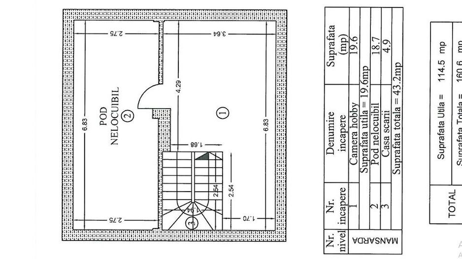
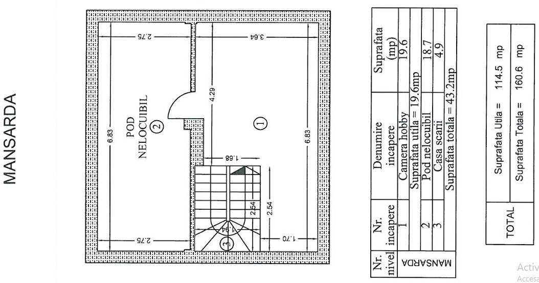
- Mansardă: camera hobby, pod(se poate folosi pentru depozitare) - cu suprafata totala de 43,2mp

Nota: fotografiile sunt dintr-o vila asemanatoare(finisajele se pot personaliza).

Facilități: statie STB, statie de metrou Tudor Arghezi, Mega Image, Carrefour , farmacie, scoli, grădinițe stat / privat, activități cu copii ( sport, pian, limbi străine, înot, etc) , sală de fitness, cofetărie, măcelărie, piață agroalimentară, echitație , restaurante , săli evenimente, salon de înfrumusețare.

Citește mai mult

  • Număr camere
    5
  • Dormitoare
    3
  • Număr bucătării
    1
  • Număr băi
    2
  • Geam la baie
    Da
  • Număr balcoane
    1
  • Număr terase
    1
  • Număr locuri parcare
    2
  • Disponibilitate
    Imediat
  • Tip casă
    Duplex
  • Stare interior
    Semifinisat
  • Anul finisării
    2025
  • Suprafață utilă
    132.8 mp
  • Suprafață construită
    160.6 mp
  • Suprafață construită la sol (Amprentă)
    61.0 mp
  • Suprafață teren
    220 mp
  • Suprafață curte
    150 mp
  • Suprafață curte liberă
    150 mp
  • Suprafață terasă
    14 mp
  • Deschidere
    15 m
  • Acoperiș
    Tablă
  • Stadiu construcție
    Finalizată
  • An construcție
    2024
  • Construcție nouă
    Da
  • De la dezvoltator
    Da
  • Tip construcție
    Beton
  • Număr etaje clădire
    1
  • Are mansardă
    Da
  • Are pod
    Da

Facilități

Apă
Bucătărie deschisă
Bucătărie închisă
Cabină de duș
Cadă
Calorifere
Canalizare
CATV
Centrală proprie
Contor electric
Contor gaz
Curent
Curte
Faianță
Ferestre PVC
Gaz
Geamuri cu izolație fonică
Geamuri cu protecție UV
Geamuri tripan
Grădină proprie
Gresie
Iluminat stradal
Internet
Izolație exterioară
Loc de joacă copii
Mijloace de transport în comun
Nemobilat
Parcare deschisă
Parchet laminat
Scară interioară
Străzi asfaltate
Telefon
Ușă intrare metal
Uși interior lemn
Uși interior PVC
Uși interior sticlă
Vedere panoramică
Vedere spre oraș
Vopsea lavabilă
Florin Ghenceanu
Broker Imobiliar

0720002332


Solicită chiar acum o vizionare
Telefon
Sună acum Solicită vizionare
Necesare:

Site-ul nu poate funcționa corect fără aceste cookie-uri. Vezi cookie-urile

Statistică:

Strângem statistici anonime despre voi, vizitatorii unici, pentru a vă îmbunătăți experiența dumneavoastră. Vezi cookie-urile

Marketing:

Pentru a ne promova mai eficient serviciile noastre, folosim cookies pentru a vă identifica și a vă oferi proprietăți și servicii personalizate. Vezi cookie-urile

Acest site folosește cookies, află detalii. Alege ce tipuri de cookies dorești să permitem: