ID CP2801160

sp.com.-45mp+terasa descop-10mp+2parcari/20min metrou Berceni

ID CP2801160

1,100 € (negociabil)

Spațiu comercial de închiriat
Nord-Vest, Popesti-Leordeni
44.7 mp
2019

Proprietar,

inchiriez prin agentie(tel: 0720002332 - pentru detalii si vizionari),

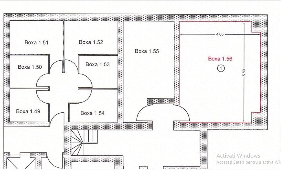
spatiu comercial cu o suprafață de aprox. 45mp, la care se adauga o terasa descoperita de aprox. 10mp(situata pe latura din fata a spatiului, aceasta fiind si zona de acces) si doua locuri de parcare(dispuse chiar in fata terasei), dar si un spatiu dispus la subsol(poate fi folosit ca vestiar sau/si pentru depozitare) cu acces pe scara betonata fixa, avand susprafata de aprox. 26mp.

centrala termică pe gaz, apa curenta, internet si cablu TV, grup sanitar, incalzire in pardoseala.

Spatiu se închiriază pe termen lung si foarte lung.

Spatiul se preda liber, sau, se poate discuta pe marginea a ceea ce la momentul efectuarii fotografiilor(sau la vizionare, daca prezinta interes si nu au fost luate).

Spatiul se poate folosi pentru activitati diverse, inclusiv pentru catering, existand aprobari in acest sens(spatiul este deja amenajat pentru preparare mancare si a obtinut autorizatie in acest sens de la DSP, Mediu, Primarie, etc.).

Se vor discuta la fata locului, in functie de interesul manifestat, toate detaliile.

Prețul poate fi negociabil in funcție de avans, daca se ofera plata in avans pe un an de zile.

Avans standard: (1+1+0,5), din valoarea unei luni de chirie; 0,5 din valoarea chiriei lunare reprezinta comisionul datorat de chirias catre agentie, o singura data, in momentul semnarii contractului de inchiriere.

Citește mai mult

  • Tip imobil
    Bloc de apart.
  • Trafic pietonal
    Moderat
  • Etaj
    Parter
  • Număr camere
    1
  • Număr băi
    1
  • Număr terase
    1
  • Suprafață construită
    69 mp
  • Suprafață utilă
    44.7 mp
  • Suprafață teren
    9.7 mp
  • Front stradal
    6.0 m
  • Vitrină (m)
    6.0 m
  • Înălțime interioară
    3.0
  • Disponibilitate
    Imediat
  • Compartimentare spațiu
    Flexibil
  • Număr locuri parcare
    2
  • An construcție
    2019
  • Construcție nouă
    Da
  • Număr etaje clădire
    7
  • Număr subsoluri
    1

Facilități

Apă
Canalizare
Centrală termică
Contorizare separată
Curent
Gaz
Grupuri sanitare amenajate și utilate
Parcare deschisă
Posibilitate terasă
Vedere panoramică
Vedere spre oraș
Vestiar
Florin Ghenceanu
Broker Imobiliar

0720002332


Solicită chiar acum o vizionare
Telefon
Sună acum Solicită vizionare
Necesare:

Site-ul nu poate funcționa corect fără aceste cookie-uri. Vezi cookie-urile

Statistică:

Strângem statistici anonime despre voi, vizitatorii unici, pentru a vă îmbunătăți experiența dumneavoastră. Vezi cookie-urile

Marketing:

Pentru a ne promova mai eficient serviciile noastre, folosim cookies pentru a vă identifica și a vă oferi proprietăți și servicii personalizate. Vezi cookie-urile

Acest site folosește cookies, află detalii. Alege ce tipuri de cookies dorești să permitem: