ID CP1997449

Spatiu, supr 11 mp, 1 minut metrou, pentru birou/cursuri/ateliere

ID CP1997449

200 €

Spațiu de birouri de închiriat
Berceni, Bucuresti
200 mp
2000

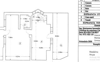
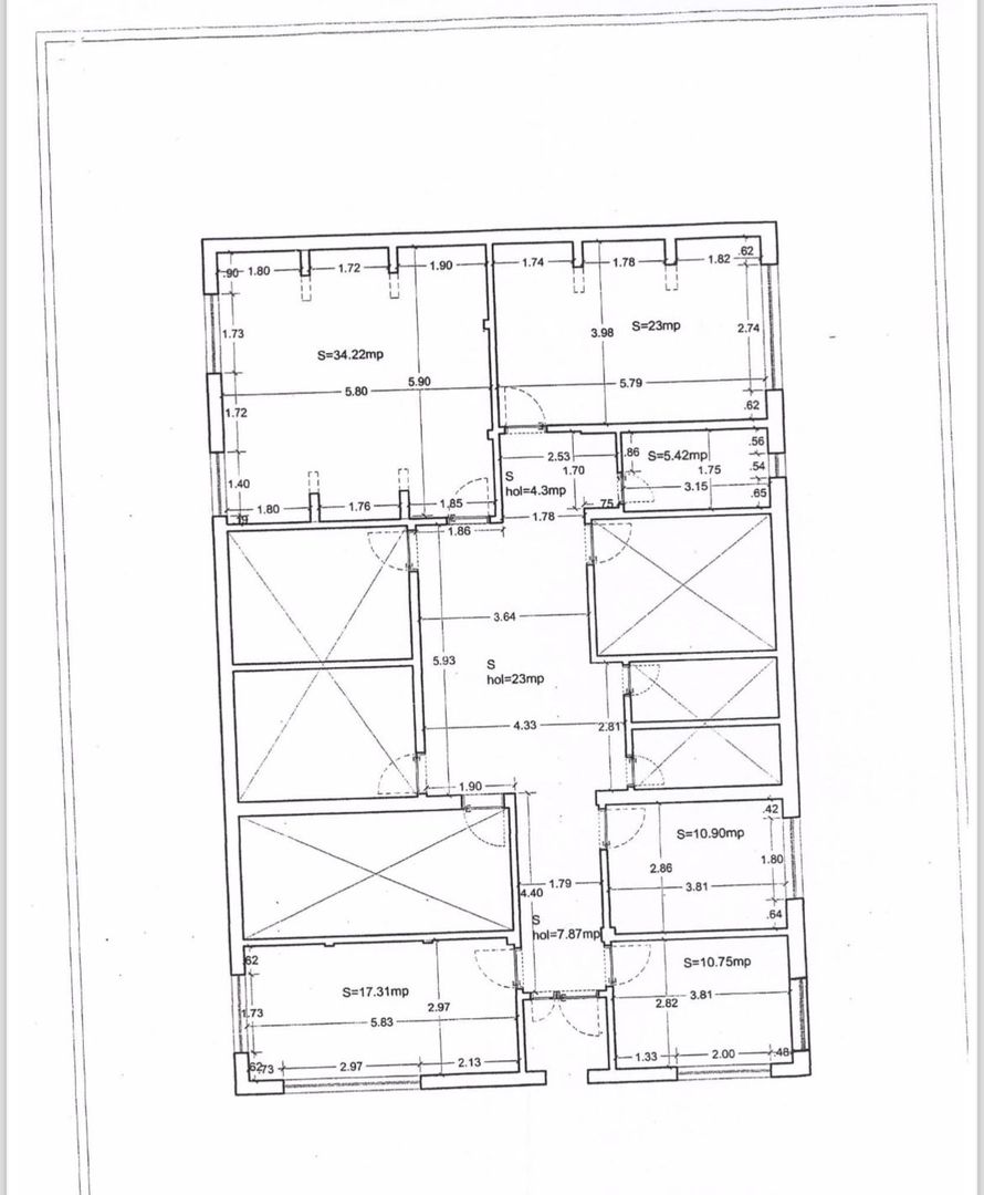
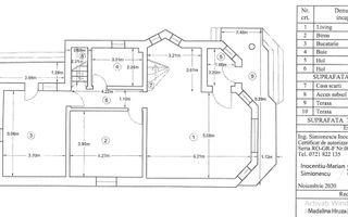
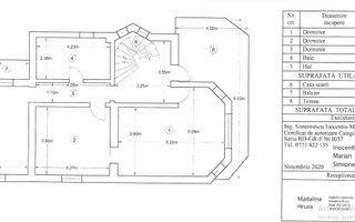
Se închiriază clădire în care sunt amenajate 9 birouri, suprafețe diverse, începând de la 11 mp (vezi plan)

este disponibil un birou 11 mp - 200 euro/luna

birou 18 mp - 250 euro/luna -inchiriat

birou 35 mp - 400 euro/luna - Inchiriat

Pretabil pentru birou diverse activități, foarte aproape de metrou Dimitrie Leonida.

Clădirea este racordată la toate utilitățile, birourile beneficiază de încălzire cu centrală. Spații comune 2 grupuri sanitare, hol de acces care poate fi folosit ca recepție/ sala de așteptare.

Exista acces auto, curte mare, nu oferim locuri de parcare, 1 minut pana la metrou Leonida.

Chiria se facturează cu scutire TVA, conform legii.

Citește mai mult

  • Tip imobil
    Clădire birouri
  • Etaj
    1
  • Clasă birouri
    A
  • Număr băi
    2
  • Suprafață construită
    250 mp
  • Suprafață utilă
    200 mp
  • Disponibilitate
    Imediat
  • Suprafață minimă
    10 mp
  • Suprafață maximă
    150 mp
  • Suprafață totală birouri
    200 mp
  • Compartimentare spațiu
    Compartimentat
  • Parcări suprafață
    10
  • Parcări suprafață disponibile
    10
  • An construcție
    2000
  • Construcție nouă
    Da
  • Număr etaje clădire
    1

Facilități

Administrare și management imobiliar
Afișare logo pe clădire
Cafenea la parter
Centrală termică
Centru comercial în apropiere
Contorizare separată
Control individual AC pentru fiecare zonă de birou
Curățenie exterioară
Curățenie parcare
Curățenie spații comune
Ferestre care se deschid
Gresie
Grupuri sanitare amenajate și utilate
Îndepărtarea zăpezii
Îngrijirea spațiilor verzi
Internet
Mochetă
Parcare deschisă
Parchet
Posibilitatea alegerii operator date / telefonie
Post trafo
Salubritate
Stație de autobuz în apropiere
Stație de metrou în apropiere
Telefon
Mihaela Visan - Marvis Rezidential
Mihaela Visan
Broker Imobiliar

0724458272


Solicită chiar acum o vizionare
Telefon
Sună acum Solicită vizionare
Necesare:

Site-ul nu poate funcționa corect fără aceste cookie-uri. Vezi cookie-urile

Statistică:

Strângem statistici anonime despre voi, vizitatorii unici, pentru a vă îmbunătăți experiența dumneavoastră. Vezi cookie-urile

Marketing:

Pentru a ne promova mai eficient serviciile noastre, folosim cookies pentru a vă identifica și a vă oferi proprietăți și servicii personalizate. Vezi cookie-urile

Acest site folosește cookies, află detalii. Alege ce tipuri de cookies dorești să permitem: