ID CP2823376

2cam-Studio mob-util cu chirias/ideal investitie/la metrou Berceni

ID CP2823376

85,500 €

Apartament cu 2 camere de vânzare
Nord-Vest, Popesti-Leordeni
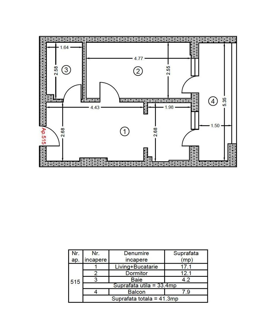
41.3 mp
2024

Proprietar,

vand prin agentie(comision 1,5% pentru cumparator, din pretul de tranzactionare), asa cum se vede in fotografii,

apartament situat pe mijloc, pe etaj intermediar(et.5), compus din 2 camere si dependinte, tip studio, avand vedere catre Vest(curtea interioara foarte generoasa a ansamblului, oferind liniste si intimitate), constructie noua(2024), cu iesire atat din dormitor cat si din bucatarie, intr-un balcon generos tip logie(care se poate inchide cu taplarie cu geam termopan sau sticla, dupa cum se doreste), disponibil imediat dupa vanzare.

Apartamentul, este mobilat si utilat complet, totul nou, fiind inchiriat in momentul de fata, iar daca viitorul proprietar il ia pentru investitie, poate prelua apartamentul cu tot cu chirias, chiria actuala fiind undeva putin peste 400euro).

In aceeasi masura, daca apartamentul se doreste pentru folosinta proprie, va fi eliberat intr-un termen de maxim 30 zile de la vanzare.

Achiziția se poate face atat prin credit bancar cat si cash.

Ansamblul din care face parte, este situat in str. Biruintei nr. 81, ofera: incalzire in pardoseala(centrala proprie pe gaz), aer conditionat, doua lifturi, toate utilitatile contorizate individual.

In proximitate aveti: 2 parcuri, 2 piscine exterioare, acces la metrou pe jos, 5-7min. maxim, Auchan Sky Garden, Mega Image, Carrefour, complex sportiv(piscina acoperita, fitness,etc.), campus gimnazial(10 min. mers pe jos), gradinite, afterschool, acces rapid catre multiple puncte de interes din sectorul 4 si din capitala(12min. cu metroul pana la Pta Unirii si 25min. pana la statia de metrou Pipera.

Citește mai mult

  • Tip apartament
    Apartament
  • Compartimentare
    Decomandat
  • Număr camere
    2
  • Dormitoare
    1
  • Număr bucătării
    1
  • Număr băi
    1
  • Etaj
    6
  • Suprafață utilă
    41.3 mp
  • Suprafață construită
    57 mp
  • Suprafață totală
    41.3 mp
  • Disponibilitate
    Imediat
  • Orientare
    Vest
  • Confort
    1
  • Stare interior
    Finisat modern
  • Anul finisării
    2025
  • Număr balcoane
    1
  • Imobil
    Bloc de apart.
  • Stadiu construcție
    Finalizată
  • An construcție
    2024
  • Construcție nouă
    Da
  • La revânzare
    Da
  • Tip construcție
    Beton
  • Număr etaje clădire
    7

Facilități

Acoperiș
Aer condiționat
Apă
Apometre
Aragaz
Bucătărie deschisă
Bucătărie mobilată
Bucătărie utilată
Cabină de duș
Canalizare
CATV
Contor electric
Contor gaz
Curent
Curte comună
Dressing
Facilități sportive
Faianță
Ferestre PVC
Frigider
Gaz
Geamuri cu izolație fonică
Geamuri cu protecție UV
Geamuri termopan
Gresie
Hotă
Iluminat stradal
Încălzire prin pardoseală
Interfon
Internet
Izolație exterioară
Lift
Loc de joacă copii
Mașină de spălat rufe
Mijloace de transport în comun
Mobilat complet
Parcare deschisă
Parchet laminat
Străzi asfaltate
Telefon
TV
Ușă intrare metal
Uși interior cu panel
Uși interior MDF
Uși interior PVC
Uși interior sticlă
Vedere panoramică
Vedere spre oraș
Vopsea lavabilă
Florin Ghenceanu
Broker Imobiliar

0720002332


Solicită chiar acum o vizionare
Telefon
Sună acum Solicită vizionare
Necesare:

Site-ul nu poate funcționa corect fără aceste cookie-uri. Vezi cookie-urile

Statistică:

Strângem statistici anonime despre voi, vizitatorii unici, pentru a vă îmbunătăți experiența dumneavoastră. Vezi cookie-urile

Marketing:

Pentru a ne promova mai eficient serviciile noastre, folosim cookies pentru a vă identifica și a vă oferi proprietăți și servicii personalizate. Vezi cookie-urile

Acest site folosește cookies, află detalii. Alege ce tipuri de cookies dorești să permitem: