ID CP2944138

2cam.dec.mob-util-impecabil-disp.imed/3min metrou

ID CP2944138

130,000 €

Apartament cu 2 camere de vânzare
Nord-Vest, Popesti-Leordeni
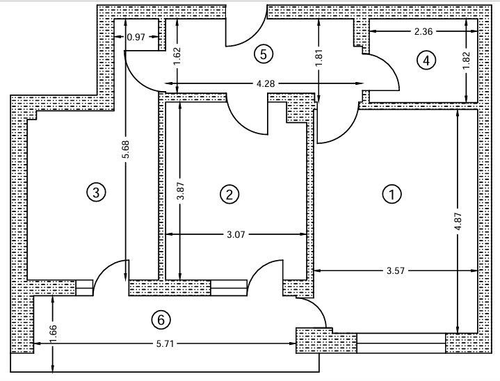
52.7 mp
2023

Proprietar(comision 0% pentru cumparator), vand

(prin agentie/pentru detalii si vizionari - tel: 0720002332), apartament compus din 2 camere(total decomandat) si dependinte, mobilat si utilat (doar cu mobila de bucătărie inclusă, fără electrocasnice și dulapurile din hol și dormitor).

Daca se doreste predarea apartamentului mobilat si utilat complet, pretul acestuia este de 140000euro.

Arata exact ca in fotografii(chiar mai bine, nu este necesar sa faceti absolut nimic, decat sa va mutati cu lucrurile personale.

Din pacate, doar la vizionare veti putea constata acest lucru, ramanand cu siguranta - surprinsi in mod placut, si, este amplasat pe str. Biruintei, intr-un bloc nou, construit in anul 2023, situat la 1 minut de mers pe jos pana la Auchan Sky Garden si 2-3 minute pana la statia de metrou Berceni(pana la Pta Unirii faceti 12 minute, pana in Pipera - 25 minute, pana la orice alta statie de capat indiferent de magistrala -maxim 45minute).

Spatiul pus la dispozitie de apartamentul in sine, este minutios pus in valoare, beneficiind de suficiente spatii de depozitare si surprinzand prin ingeniozitatea modului in care a fost decorat.

Blocul dispune de toate utilitatile publice contorizate individual, centrala termica proprie pe gaz, incalzire clasica cu calorifere, avand un regim de inaltime de doar 6 etaje, deservit de 2 lifturi si situat in unul din cele mai aerisite ansambluri rezidentiale.

Pretul poate fi usor negociabil in anumiti termeni si conditii.

* Zona, este una cu infrastructură nouă, facilități diverse(le veti descoperi la vizionare), supermarketuri, farmacii, restaurante, școli și spații verzi, cluburi si sali de fitness, piscine inchise cu program permanent sau deschise cu program sezonier, etc.

Facilități suplimentare:

* Posibilitate de achiziționare loc de parcare (la cerere, contra cost, discutabil, daca prezinta interes)

* Acces securizat în imobil

Concluzie:

Un apartament potrivit pentru persoane care caută confort, accesibilitate și un stil de viață modern apropiindu-se de ideal, atât ca locuință personală, cât și ca investiție premium, datorită zonei în continuă dezvoltare și cererii ridicate pentru închiriere.

Citește mai mult

  • Tip apartament
    Apartament
  • Compartimentare
    Decomandat
  • Număr camere
    2
  • Dormitoare
    1
  • Număr bucătării
    1
  • Număr băi
    1
  • Etaj
    5
  • Suprafață utilă
    52.7 mp
  • Suprafață construită
    81 mp
  • Suprafață totală
    62.6 mp
  • Disponibilitate
    Imediat
  • Orientare
    Sud-Est
  • Confort
    1
  • Stare interior
    Ultrafinisat
  • Anul finisării
    2023
  • Număr balcoane
    1
  • Imobil
    Bloc de apart.
  • Stadiu construcție
    Finalizată
  • An construcție
    2023
  • Construcție nouă
    Da
  • La revânzare
    Da
  • Tip construcție
    Beton
  • Număr etaje clădire
    5

Facilități

Aer condiționat
Apă
Apometre
Bucătărie închisă
Bucătărie mobilată
Bucătărie utilată
Cadă
Calorifere
Canalizare
CATV
Centrală proprie
Contor electric
Contor gaz
Curent
Curte comună
Faianță
Ferestre PVC
Frigider
Gaz
Geamuri cu izolație fonică
Geamuri cu protecție UV
Geamuri termopan
Gresie
Hotă
Iluminat stradal
Interfon
Internet
Izolație exterioară
Jaluzele orizontale
Jaluzele verticale
Lift
Loc de joacă copii
Mașină de spălat rufe
Mijloace de transport în comun
Mobilat complet
Mobilat lux
Parcare deschisă
Parchet laminat
Străzi asfaltate
Telefon
Ușă intrare metal
Uși interior cu panel
Uși interior MDF
Uși interior PVC
Uși interior sticlă
Vedere panoramică
Vedere spre oraș
Vopsea lavabilă
Florin Ghenceanu
Broker Imobiliar

0720002332


Solicită chiar acum o vizionare
Telefon
Sună acum Solicită vizionare
Necesare:

Site-ul nu poate funcționa corect fără aceste cookie-uri. Vezi cookie-urile

Statistică:

Strângem statistici anonime despre voi, vizitatorii unici, pentru a vă îmbunătăți experiența dumneavoastră. Vezi cookie-urile

Marketing:

Pentru a ne promova mai eficient serviciile noastre, folosim cookies pentru a vă identifica și a vă oferi proprietăți și servicii personalizate. Vezi cookie-urile

Acest site folosește cookies, află detalii. Alege ce tipuri de cookies dorești să permitem: