ID CP3035317

3cam.dec-1baie-disponibil imediat/Bvd Brancoveanu 130-132,sector 4

ID CP3035317

85,000 €

Apartament cu 3 camere de vânzare
Brancoveanu, Bucuresti
63 mp
1974

Proprietar,

vand(cash/credit, LA PRETUL DE 85000EURO, daca vanzarea/(intrarea intr-un antecontract) se face pana la data de 24.04.2026, altfel, dupa aceasta data pretul proprietatii va reveni la 95000euro) prin agentie(tel: 0720002332 - pentru detalii si vizionari, comision 1,5% - pentru cumparator, din pretul de tranzactionare; aveti incluse servicii complete de consiliere si asistenta, notariala si bancara, inclusiv brokeraj bancar si consiliere si asistenta post vanzare),

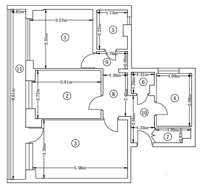
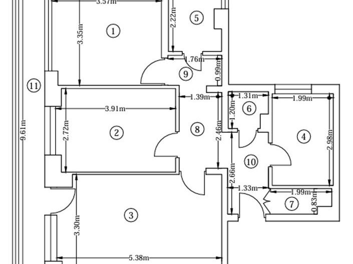
apartament total decomandat(arata exact ca in fotografii), compus din 3 camere si dependinte(hol decomandare, 2 debarale, bucatarie, baie, balcon inchis cu tamplarie cu geam termopan, ca urmare a reabilitarii termice a blocului, acesta fiind anvelopat), disponibil imediat dupa vanzare.

Actele sunt pregatite pentru vanzare(regasiti alaturi de fotografiile corespunzatoare si releveul(schita + descrierea) si certificatul energetic).

Apartamentul este igienizat(zugravit recent), calorifere din otel, aluminiu si fonta, pe instalatie de cupru(racordata la termoficatrea blocului), parchet laminat in camere, gresie si faianta pe hol, in baie, in bucatarie si pe balcon, nu dispune de centrala termica proprie, este nemobilat si neutilat, avand usile de interior din lemn(lacuit) iar geamurile si tocurile acestora(cu exceptia geamului de la bucatarie) de cand a fost construit blocul(anul de constructie este 1974).

Apartamentul este dispus pe Sud-Vest, avand o lumina naturala foarte buna, pe aproape tot parcursul zilei si vederea spre curtea interioara, beneficiind astfel de liniste si intimitate.

Blocul este retras de la strada, avand in imediata apropiere un mic parc si acces imediat la mijloace de transport(statii STB), fiind amplasat in apropierea intersectiei Bvd. Brancoveanu cu str. Luica, oferind facilitatile zonei: Mall Grand Arena, Spitalul Budimex, Scoala nr.98, Gradinita nr. 225 - Veseliei, metrou Brancoveanu, Parcul Oraselul Copiilor, Hornbach, Selgros, Kaufland, etc.

Citește mai mult

  • Tip apartament
    Apartament
  • Compartimentare
    Decomandat
  • Număr camere
    3
  • Dormitoare
    2
  • Număr bucătării
    1
  • Număr băi
    1
  • Geam la baie
    Da
  • Etaj
    6
  • Suprafață utilă
    63 mp
  • Suprafață construită
    79 mp
  • Suprafață totală
    63 mp
  • Disponibilitate
    Imediat
  • Orientare
    Sud-Est
  • Confort
    1
  • Stare interior
    Finisat clasic
  • Anul finisării
    2018
  • Număr balcoane
    1
  • Imobil
    Bloc de apart.
  • Stadiu construcție
    Finalizată
  • An construcție
    1974
  • Tip construcție
    Beton
  • Număr etaje clădire
    10

Facilități

Aer condiționat
Apă
Apometre
Bucătărie închisă
Cabină de duș
Calorifere
Canalizare
CATV
Contor electric
Contor gaz
Curent
Curte comună
Debara
Faianță
Ferestre care se deschid
Ferestre lemn
Ferestre PVC
Gaz
Geamuri cu izolație fonică
Geamuri cu protecție UV
Geamuri termopan
Gresie
Iluminat stradal
Interfon
Internet
Izolație exterioară
Lift
Loc de joacă copii
Mijloace de transport în comun
Parcare deschisă
Parchet
Parchet laminat
Străzi asfaltate
Telefon
Ușă intrare metal
Uși interior celulare
Uși interior cu panel
Uși interior lemn
Uși interior sticlă
Vedere panoramică
Vedere spre oraș
Vopsea lavabilă
Florin Ghenceanu
Broker Imobiliar

0720002332


Solicită chiar acum o vizionare
Telefon
Sună acum Solicită vizionare
Necesare:

Site-ul nu poate funcționa corect fără aceste cookie-uri. Vezi cookie-urile

Statistică:

Strângem statistici anonime despre voi, vizitatorii unici, pentru a vă îmbunătăți experiența dumneavoastră. Vezi cookie-urile

Marketing:

Pentru a ne promova mai eficient serviciile noastre, folosim cookies pentru a vă identifica și a vă oferi proprietăți și servicii personalizate. Vezi cookie-urile

Acest site folosește cookies, află detalii. Alege ce tipuri de cookies dorești să permitem: