ID CP2815940

vila finisata la cheie 4cam fara etaj/intrare com. Berceni-Ilfov

ID CP2815940

155,000 €

Casă / Vilă cu 4 camere de vânzare
Berceni
95 mp
2024

Proprietar,

vand prin agentie

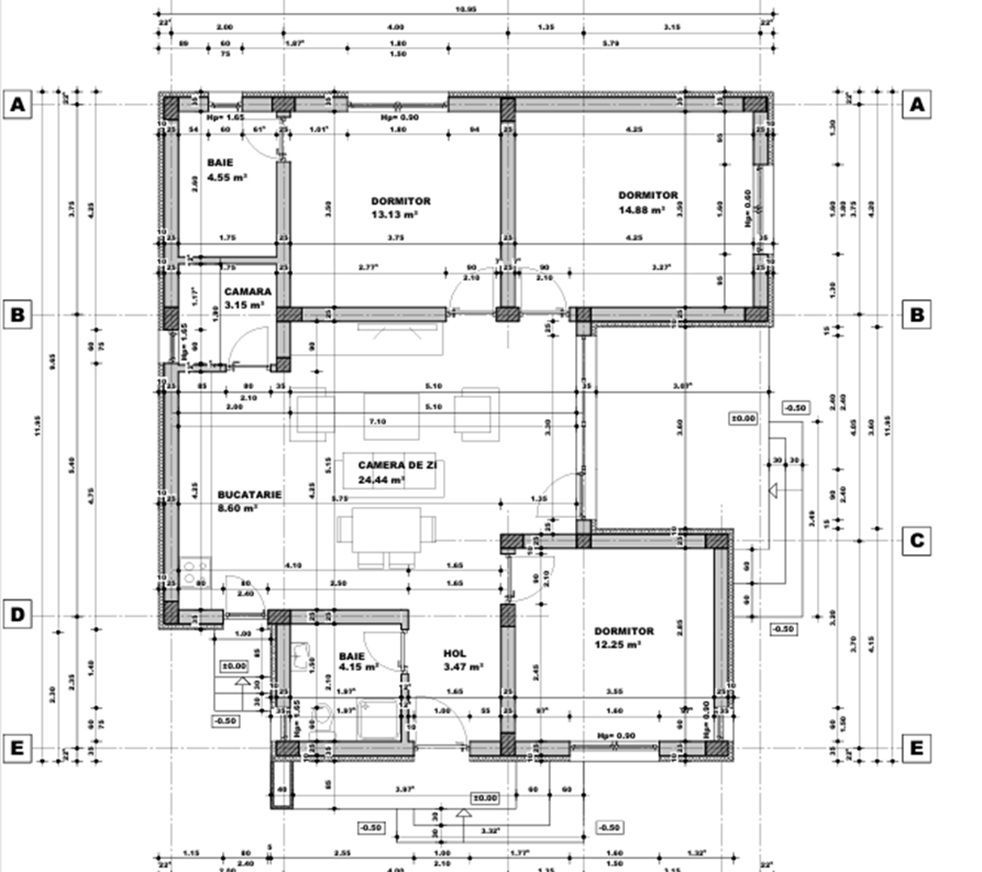
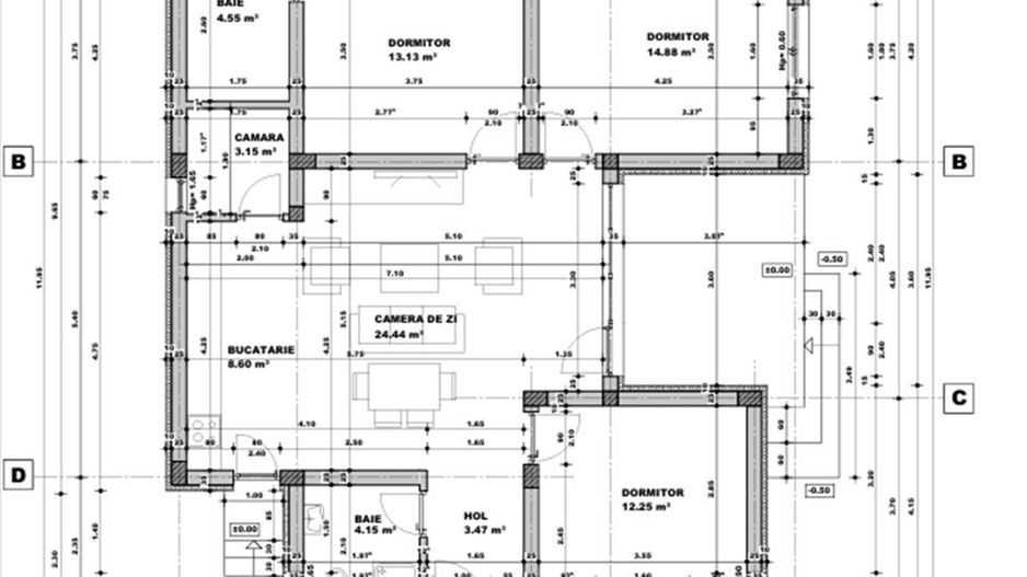
vila individuala, avand regim de inaltime parter + pod, situate la intrarea in comuna Berceni, aproape de linia de centura, cu acces usor catre centrul Bucurestiului.

Are o suprafata de 100 mp utili+14 mp terasa si un pod de depozitare de 60 mp.

Vila este finisata, la cheie, oferind mutare imediata.

Fiecare casa are un teren de 448 mp.

Casa dispune de living si 3 dormitoare, camera tehnica, bucatarie si 2 grupuri sanitarefiind bransata la utilitati (curent si gaze naturale), iar pentru alimentarea cu apa, respectiv canalizare, dispune de un put forat la 21 m adancime si de o fosa septica ecologica cu drenaj.

Finisaje exterioare:

- tigla metalica gri-antracit,

- polistiren expandat 10 cm EPS 80,

- vopsea decorativa Duraziv TDS 2,5 mm,

- tamplarie PVC Rehau cu sticla "four seasons".

Executia caselor s-a efectuat cu materiale de calitate, respecta normele de siguranta in constructii si este realizata conform proiectului tehnic de executie avizat de ingineri specializati in rezistenta constructiilor.

Pretul pentru o casa finisata "la cheie" si bransata la utilitati este 155000 Euro.

Oferim flexibilitate si negociere in amenajare, dorind sa venim in intampinarea clientului cu consilierea si devizele necesare in cazul in care se opteaza si pentru alte amenajari.

Conditii de plata:

Avans-20% iar diferenta se achita la semnarea contractului de vanzare-cumparare cu cash sau prin credit ipotecar.

Costuri orientative, de achizitie, pentru cumparator:

1. Cu credit: in jur de 2100euro.

2. Cu cash integral(fara credit): in jur de 2000euro.

3. Comision 0,75% - din pretul de tranzactionare/vanzare, dar nu mai putin de 1000euro.

Citește mai mult

  • Număr camere
    4
  • Dormitoare
    3
  • Număr bucătării
    1
  • Număr băi
    2
  • Geam la baie
    Da
  • Număr terase
    1
  • Număr locuri parcare
    2
  • Disponibilitate
    Imediat
  • Tip casă
    Individual
  • Stare interior
    Finisat modern
  • Anul finisării
    2024
  • Suprafață utilă
    95 mp
  • Suprafață construită
    119 mp
  • Suprafață construită la sol (Amprentă)
    95.0 mp
  • Suprafață teren
    448 mp
  • Suprafață curte
    420 mp
  • Suprafață curte liberă
    348 mp
  • Suprafață terasă
    14 mp
  • Acoperiș
    Țiglă
  • Stadiu construcție
    Finalizată
  • An construcție
    2024
  • Construcție nouă
    Da
  • De la dezvoltator
    Da
  • Tip construcție
    Beton
  • Are pod
    Da

Facilități

Apă
Canalizare
CATV
Contor electric
Contor gaz
Curent
Gaz
Iluminat stradal
Încălzire prin pardoseală
Internet
Izolație exterioară
Mijloace de transport în comun
Străzi asfaltate
Telefon
Florin Ghenceanu
Broker Imobiliar

0720002332


Solicită chiar acum o vizionare
Telefon
Sună acum Solicită vizionare
Necesare:

Site-ul nu poate funcționa corect fără aceste cookie-uri. Vezi cookie-urile

Statistică:

Strângem statistici anonime despre voi, vizitatorii unici, pentru a vă îmbunătăți experiența dumneavoastră. Vezi cookie-urile

Marketing:

Pentru a ne promova mai eficient serviciile noastre, folosim cookies pentru a vă identifica și a vă oferi proprietăți și servicii personalizate. Vezi cookie-urile

Acest site folosește cookies, află detalii. Alege ce tipuri de cookies dorești să permitem: