ID CP3018717

sp.com-160,4mp+terasa-5,5mp+3parcari/8min pe jos metrou D. Leonida

ID CP3018717

2,200 €

Spațiu comercial de închiriat
Nord-Vest, Popesti-Leordeni
166 mp
2021

Proprietar,

inchiriez prin agentie(tel: 0749122233 - pentru detalii si vizionari),

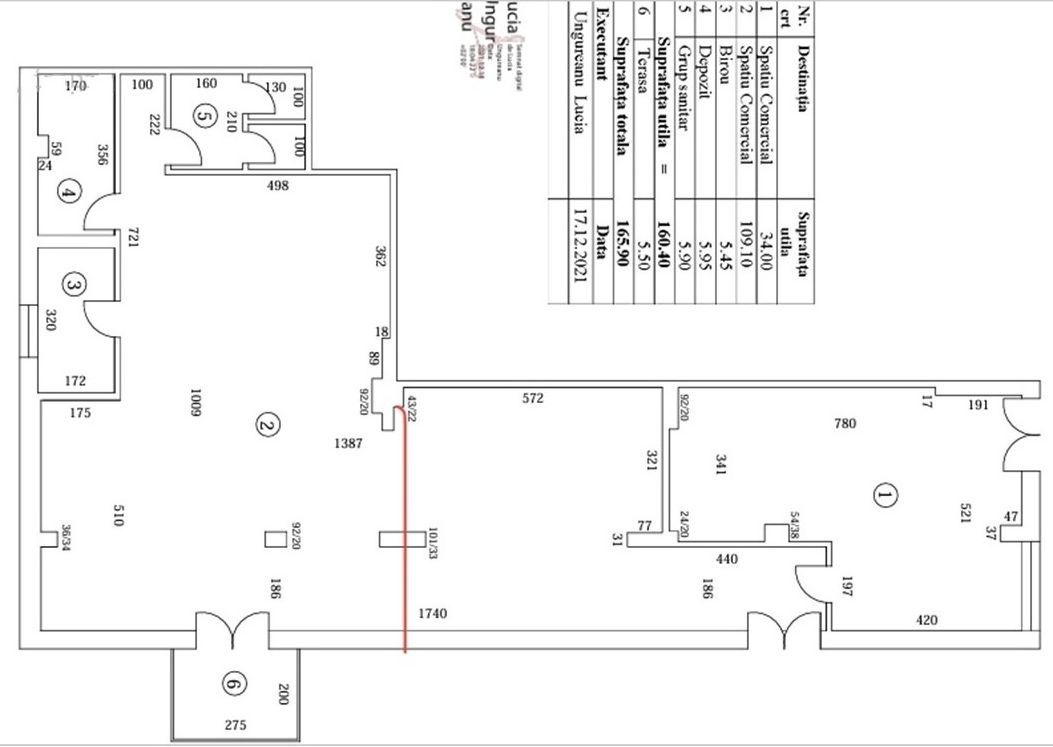
spatiu comercial cu o suprafață de 160,4mp utili + terasa de 5,5mp + 3 locuri de parcare dispuse in fata spatiului(aceasta fiind si una din cele trei zone de acces - a se vedea releveul atasat).

Dispune de centrala termică pe gaz, apa curenta, internet si cablu TV, grup sanitar.

Spatiu se închiriază pe termen mediu(1-2 ani) si lung(peste 2 ani).

Spatiul se preda liber, sau, se poate discuta pe marginea a ceea ce se doreste.

Spatiul se poate folosi pentru activitati diverse, fiind situat la parterul unui bloc de locuinte dintr-o zona rezidentiala, foarte aproape de supermarketul Penny si Parcul Dr. Fermei de pe str. Dr. Fermei, cat si de statia autobuzului 480, oferind acces foarte usor atat cu masina personala, cat si pietonal sau cu mijloacele de transport in comun(8 minute pe jos pana la statia de metrou D.Leonida sau 10 minute pe jos pana la statia de metrou Berceni), zona beneficiind de infrastructura completa.

Se vor discuta la fata locului, in functie de interesul manifestat, toate detaliile.

Prețul poate fi negociabil in funcție de avans, daca se ofera plata in avans pe un an de zile sau in alti termeni si conditii agreate de parti.

Avans standard: (1+1+0,5), din valoarea unei luni de chirie; 0,5 din valoarea chiriei lunare reprezinta comisionul datorat de chirias catre agentie, o singura data, in momentul semnarii contractului de inchiriere.

Citește mai mult

  • Tip imobil
    Bloc de apart.
  • Trafic pietonal
    Intens
  • Etaj
    Parter
  • Număr camere
    1
  • Număr băi
    1
  • Număr terase
    1
  • Suprafață construită
    193 mp
  • Suprafață utilă
    166 mp
  • Front stradal
    6.0 m
  • Vitrină (m)
    5.0 m
  • Înălțime interioară
    3.0
  • Disponibilitate
    Imediat
  • Compartimentare spațiu
    Flexibil
  • Număr locuri parcare
    3
  • An construcție
    2021
  • Construcție nouă
    Da
  • Număr etaje clădire
    5

Facilități

Apă
Canalizare
Centrală termică
Contorizare separată
Curent
Gaz
Grupuri sanitare amenajate și utilate
Parcare deschisă
Posibilitate terasă
Vedere panoramică
Vedere spre oraș
Vestiar
Viorel Nica
Broker Imobiliar

0749122233


Solicită chiar acum o vizionare
Telefon
Sună acum Solicită vizionare
Necesare:

Site-ul nu poate funcționa corect fără aceste cookie-uri. Vezi cookie-urile

Statistică:

Strângem statistici anonime despre voi, vizitatorii unici, pentru a vă îmbunătăți experiența dumneavoastră. Vezi cookie-urile

Marketing:

Pentru a ne promova mai eficient serviciile noastre, folosim cookies pentru a vă identifica și a vă oferi proprietăți și servicii personalizate. Vezi cookie-urile

Acest site folosește cookies, află detalii. Alege ce tipuri de cookies dorești să permitem: