ID CP3041411

vila 7camere/(348util,500teren,119ampr.)mp/5min.metrouAp.Patriei

ID CP3041411

435,000 €

Casă / Vilă cu 7 camere de vânzare
Aparatorii Patriei, Bucuresti
348 mp
2002

Proprietar

Vand vila(construita in regie proprie) individuala dispusa pe parter, etaj si pod mansardat, situata la 5-7min de mers pe jos pana la statia de metrou Ap. Patriei, avand dubla deschidere, cu posibilitatea parcarii a 5 masini(2 in curte si 3 pe zona de proprietate).

Se vinde fie mobilata si utilata, cel putin cum se vede in fotografii, fie goala, dupa cum se doreste.

Arata exact ca in fotografii; este certificata energetic casa A.

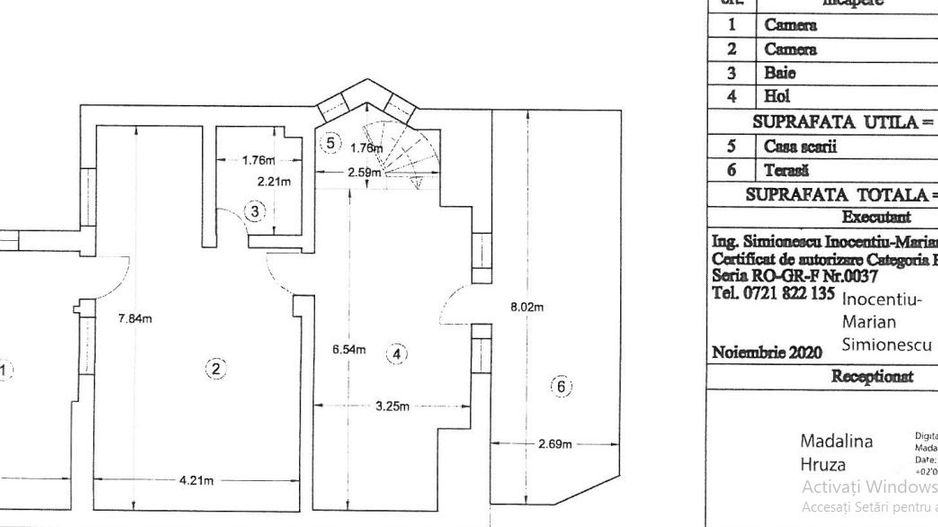
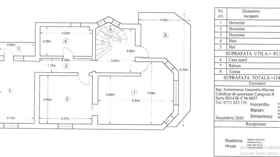
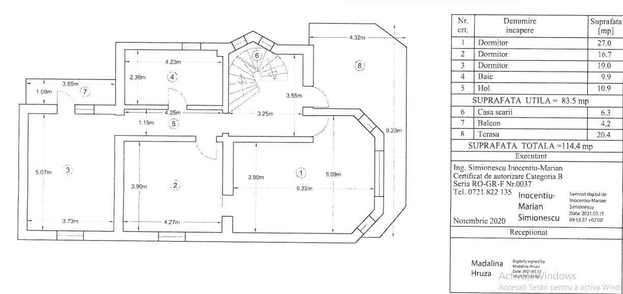
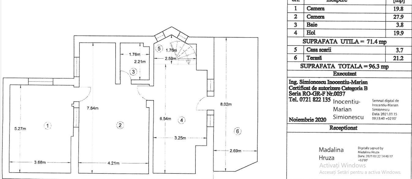
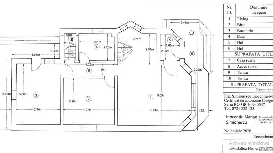
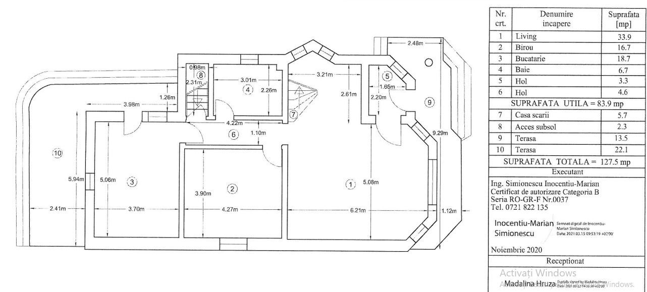
Va rog sa regasiti in informatiile atasate, fotografiile si releveul corespunzator pe fiecare nivel in parte.

Mai multe detalii, pentru potentialii clienti interesati de achizitie in mod real, la tel: 0749122233

Toate actele sunt pregatite pentru vanzare.

Dispune atat de loc de joaca(amenajat deasupra piscinei exterioare) pentru copii, cat si de piscina.

Beneficiaza atat de toate utilitatile publice(apa, energie electrica, gaz, internet-cablu TV) cat si de put propriu cu hidrofor pentru alimentarea cu apa a piscinei si intretinerea spatiului verde.

Citește mai mult

  • Număr camere
    7
  • Dormitoare
    5
  • Număr bucătării
    1
  • Număr băi
    3
  • Geam la baie
    Da
  • Număr balcoane
    1
  • Număr terase
    4
  • Număr garaje
    2
  • Număr locuri parcare
    4
  • Disponibilitate
    Imediat
  • Tip casă
    Individual
  • Stare interior
    Finisat modern
  • Anul finisării
    2018
  • Suprafață utilă
    348 mp
  • Suprafață construită
    348 mp
  • Suprafață construită la sol (Amprentă)
    119.0 mp
  • Suprafață teren
    500 mp
  • Suprafață curte
    375 mp
  • Suprafață curte liberă
    256 mp
  • Suprafață terasă
    77.2 mp
  • Deschidere
    41 m
  • Acoperiș
    Tablă
  • Stadiu construcție
    Finalizată
  • An construcție
    2002
  • Construcție nouă
    Da
  • Tip construcție
    Beton
  • Număr etaje clădire
    1
  • Număr subsoluri
    1
  • Are mansardă
    Da
  • Cadastru
    Există
  • Intabulare
    Există
  • Mod de dobândire
    Autorizație de construire
  • Certificat Energetic
    Există
  • Clasă Energetică
    A

Facilități

Acoperiș
Aer condiționat
Apă
Apometre
Aragaz
Bucătărie închisă
Bucătărie mobilată
Bucătărie utilată
Cabină de duș
Cadă
Calorifere
Canalizare
CATV
Centrală proprie
Contor electric
Contor gaz
Curent
Curte
Dressing
Faianță
Ferestre PVC
Frigider
Garaj
Gaz
Geamuri cu izolație fonică
Geamuri cu protecție UV
Geamuri termopan
Geamuri tripan
Grădină proprie
Gresie
Hotă
Iluminat stradal
Internet
Irigații
Izolație exterioară
Jacuzzi
Jaluzele orizontale
Jaluzele verticale
Loc de joacă copii
Mașină de spălat rufe
Mașină de spălat vase
Mijloace de transport în comun
Mobilat complet
Parcare deschisă
Parchet
Parchet laminat
Pivniță
Podele granit
Podele marmură
Podele piatră naturală
Scară interioară
Senzor de fum
Sistem de alarmă
Străzi asfaltate
Supraveghere video
Telefon
TV
Ușă intrare metal
Uși interior cu panel
Uși interior lemn
Uși interior MDF
Uși interior PVC
Uși interior sticlă
Vedere panoramică
Vedere spre oraș
Vopsea lavabilă
Wireless
Viorel Nica
Broker Imobiliar

0749122233


Solicită chiar acum o vizionare
Telefon
Sună acum Solicită vizionare
Necesare:

Site-ul nu poate funcționa corect fără aceste cookie-uri. Vezi cookie-urile

Statistică:

Strângem statistici anonime despre voi, vizitatorii unici, pentru a vă îmbunătăți experiența dumneavoastră. Vezi cookie-urile

Marketing:

Pentru a ne promova mai eficient serviciile noastre, folosim cookies pentru a vă identifica și a vă oferi proprietăți și servicii personalizate. Vezi cookie-urile

Acest site folosește cookies, află detalii. Alege ce tipuri de cookies dorești să permitem: